Používáme cookies k optimalizaci našich webových stránek a našich služeb. Další informace o cookies najdete zde.

Nastavení


Prodej RD, ul. Na návsi, Všenory - Praha západ

 

 

Prodej RD, 150 m2, pozemek 204 m2

ul. Na návsi, Všenory - Praha západ

8.500.000 Kč

 

Popis nemovitosti

Exkluzivně nabízím ke koupi rodinný dům o užitné ploše 150 m2, s pozemkem 204 m2, v ul. Na návsi, Praha západ – Všenory.
Původní chalupa byla v r. 2003 zrekonstruována se zachováním venkovského rázu celé stavby.
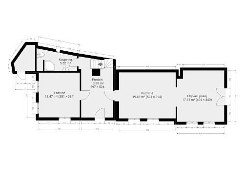
V přízemí najdeme prostornou kuchyň s jídelnou, obývací pokoj, ložnici, koupelnu se sprchou a WC. Z obývacího pokoje je přístup na malou útulnou uzavřenou zahradu. V obytném podkroví je ložnice s koupelnou ( vana ), oddělené WC a velký pokoj se zimní zahradou.
Dispozici domu můžete podrobně vidět na přiložených půdorysech ve fotogalerii.
Vytápění domu je zajištěno tepelným čerpadlem ( podlahové topení a litinové radiátory ), v obývacím pokoji jsou také krbová kamna.
Dům je napojen na obecní vodu a kanalizaci, na zahradě je vrtaná studna.
Dům je z malé části podsklepen ( cca 8 m2 ).
Dům lze okamžitě užívat nicméně rekonstrukce určitých částí je vhodná.
Jedná se o výjimečnou nemovitost svým umístěním a stylem.
V případě zájmu o prohlídku a bližší informace mě prosím kontaktujte telefonicky.

3D scan

Halgaš Reality

Jsme tým, který spojuje zkušenosti s nadšením a moderním přístupem.

Jmenuji se Bohumila Halgašová a jako realitní makléřka s více než 13 lety zkušeností pomáhám lidem najít vysněné bydlení nebo úspěšně prodat jejich nemovitosti s důrazem na důvěru a kvalitu služeb.

Jsem Martin Halgaš, mladý realitní makléř plný energie, který přináší moderní nástroje a aktuální přístupy.

Společně nabízíme ideální kombinaci tradice a inovace. Ať už hledáte nový domov nebo prodáváte, jsme tu pro vás.

Těšíme se na spolupráci!


Halgaš Reality

Kontaktní formulář

Stáhnout PDF