Prodej bytu 3+kk, OV, 42 m2, balkon,
ul. Přetlucká, Praha - Strašnice
5.890.000 Kč
Prodej bytu 3+kk, OV, 42 m2, balkon,
ul. Přetlucká, Praha - Strašnice
5.890.000 Kč
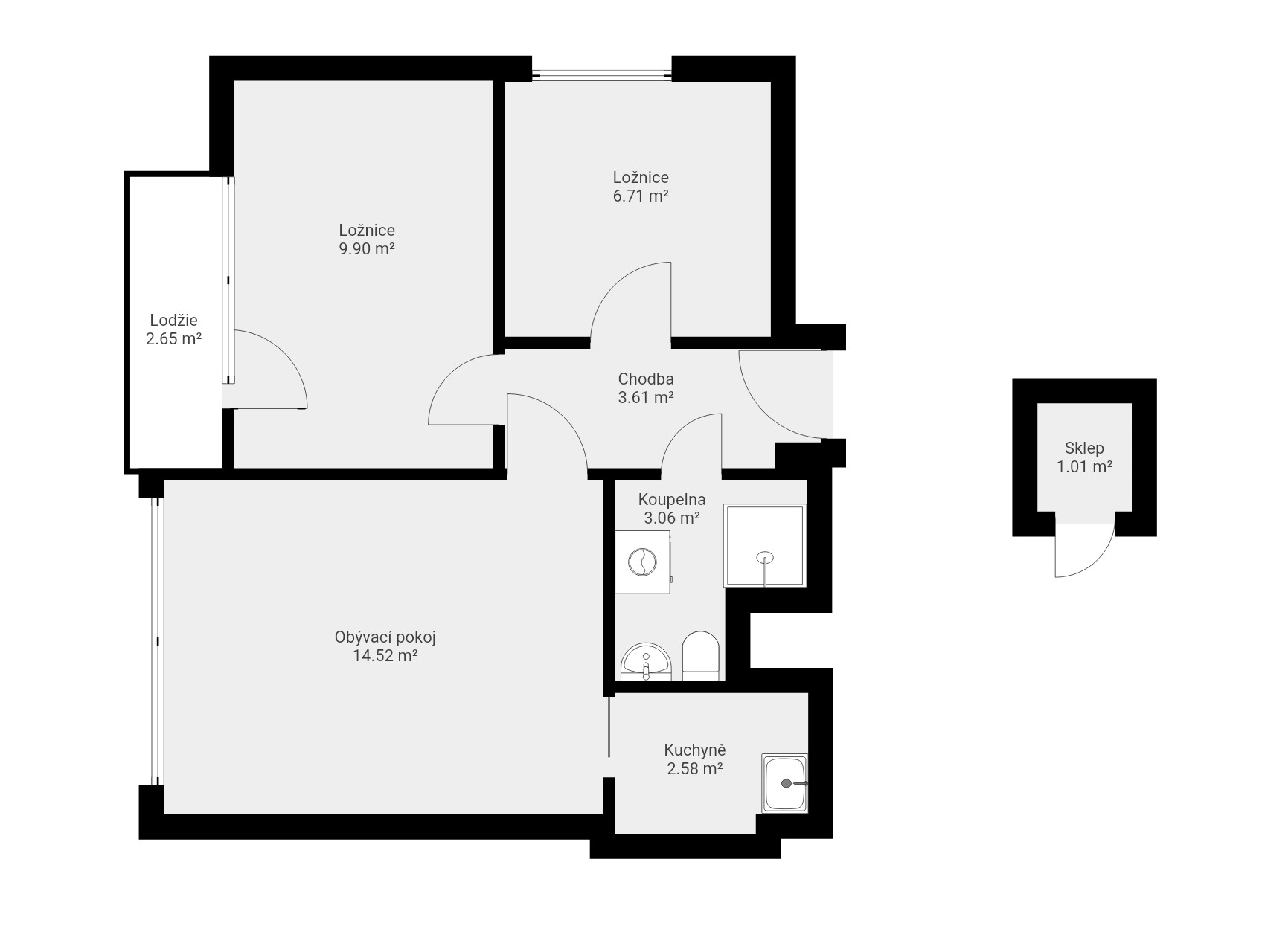
Exkluzivně nabízím ke koupi byt 3+kk, OV, 42 m² se zaskleným balkonem o velikosti 2,65 m². Nachází se v ulici Přetlucká, Praha 10 - Strašnice, 7. patro zatepleného panelového domu s dvěma výtahy.
Dispozice zahrnuje obývací pokoj s kuchyňským koutem, který je oddělen posuvnými dveřmi, dále dva menší pokoje a koupelnu se sprchovým koutem a toaletou. Byt prošel částečnou rekonstrukcí, má zděné jádro, novější podlahy a je celkově v udržovaném stavu. Koupelna je vhodná k modernizaci. Úpravou dispozice (odstraněním jedné příčky) lze snadno vytvořit prostornější byt 2+kk.
Dům je z roku 1970 a zateplení domu se dělalo před 15ti lety. Parkování je možné přímo před domem v modré zóně pro rezidenty.
Lokalita má vynikající dopravní dostupnost. Velkou předností je blízkost stanice metra Skalka - 500 m, tramvajová i autobusová zastávka a vlakové nádraží Strašnice jsou v pěší vzdálenosti. V okolí je kompletní občanská vybavenost včetně obchodů, škol, školek, parků i služeb.
Byt je v osobním vlastnictví a koupi lze financovat hypotečním úvěrem.
V případě zájmu o prohlídku nebo bližší informace mě prosím kontaktujte.
